Частный Белый Дом

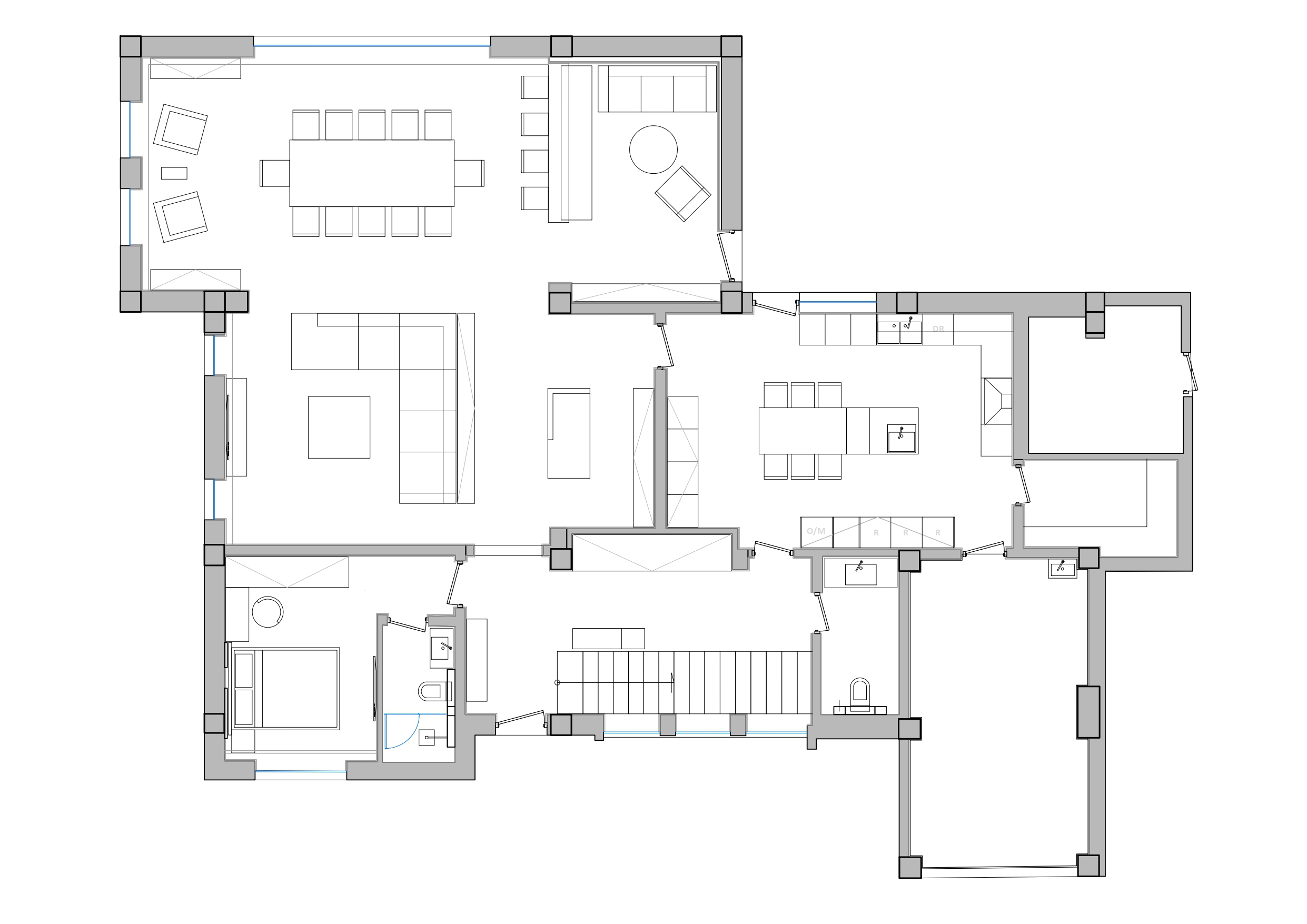
Площадь дома составляет 543 кв.м. На фасаде есть очень интересный  символ: восьмиугольный соляр-крест, который считается одним из орнаментов армянско...

Место нахождения:
Ереван, Армения
Квадратные метры:
543
Дата:
2020

Частный Белый Дом

Площадь дома составляет 543 кв.м. На фасаде есть очень интересный  символ: восьмиугольный соляр-крест, который считается одним из орнаментов армянской средневековой архитектуры. Мы использовали его геометрическую форму, сочетая армянский стиль с современным.Этот дом имеет идеальный внешний вид.Просто посидеть и покурить кальян здесь - отличный способ провести тихие вечера. При создании интерьера мы используем только качественные материалы и мебель.