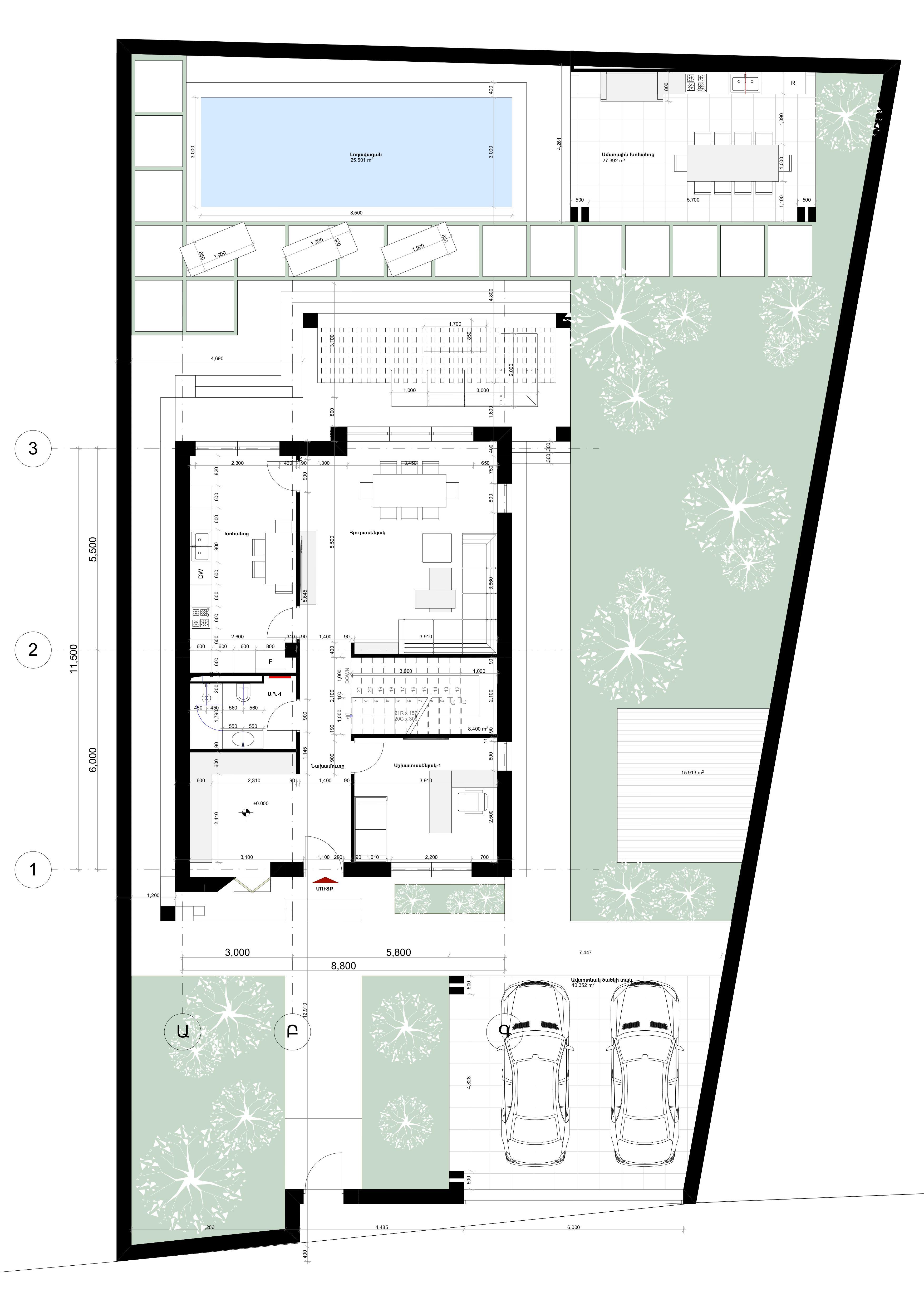
Дом Мечты

Архитектурный проект общей площадью 600 квадратных метров.
Весь дом занимает всего 200 квадратных метров. Белый травертин, черный туф – основн...

Место нахождения:
Ереван, Армения
Квадратные метры:
200-600
Дата:
2022

Дом Мечты

Архитектурный проект общей площадью 600 квадратных метров.
Весь дом занимает всего 200 квадратных метров. Белый травертин, черный туф – основные составляющие для создания этого прекрасного архитектурного проекта. Во всех проектах мы стараемся сделать что-то новое, наслаждаясь простотой и создавая гармонию, работая с материалами и светом.
Мы гарантируем, что вы можете иметь дом своей мечты, не тратя много денег.