Apartment in Pushkin

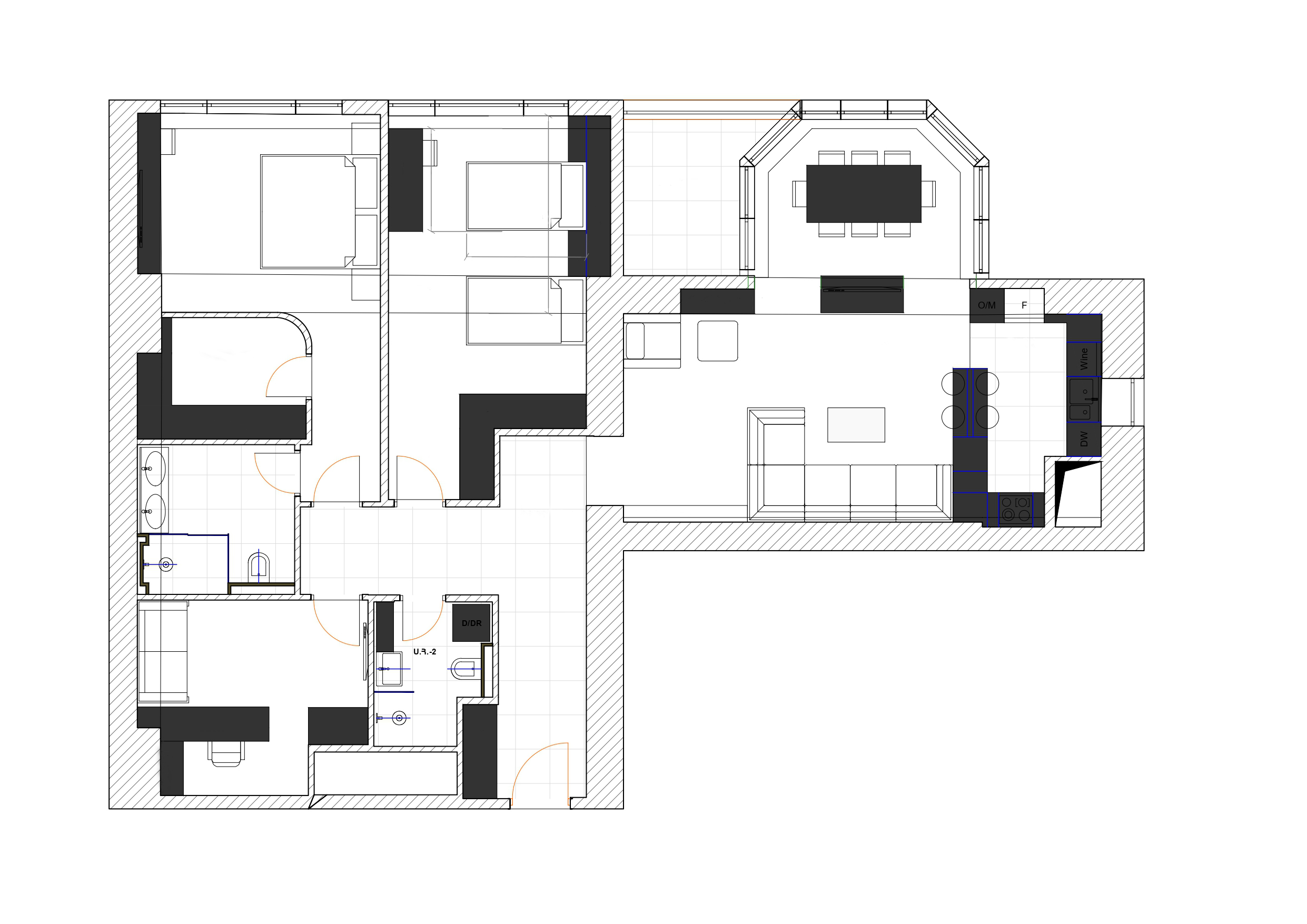
A very neat and comfortable apartment design, where every corner is used very rationally. As the living room and the kitchen are in one common room, the u...

Location:
Yerevan, Armenia
Square meters:
137
Date:
2022

Apartment in Pushkin

A very neat and comfortable apartment design, where every corner is used very rationally. As the living room and the kitchen are in one common room, the use of built-in furniture is the best solution for having such a perfect result.