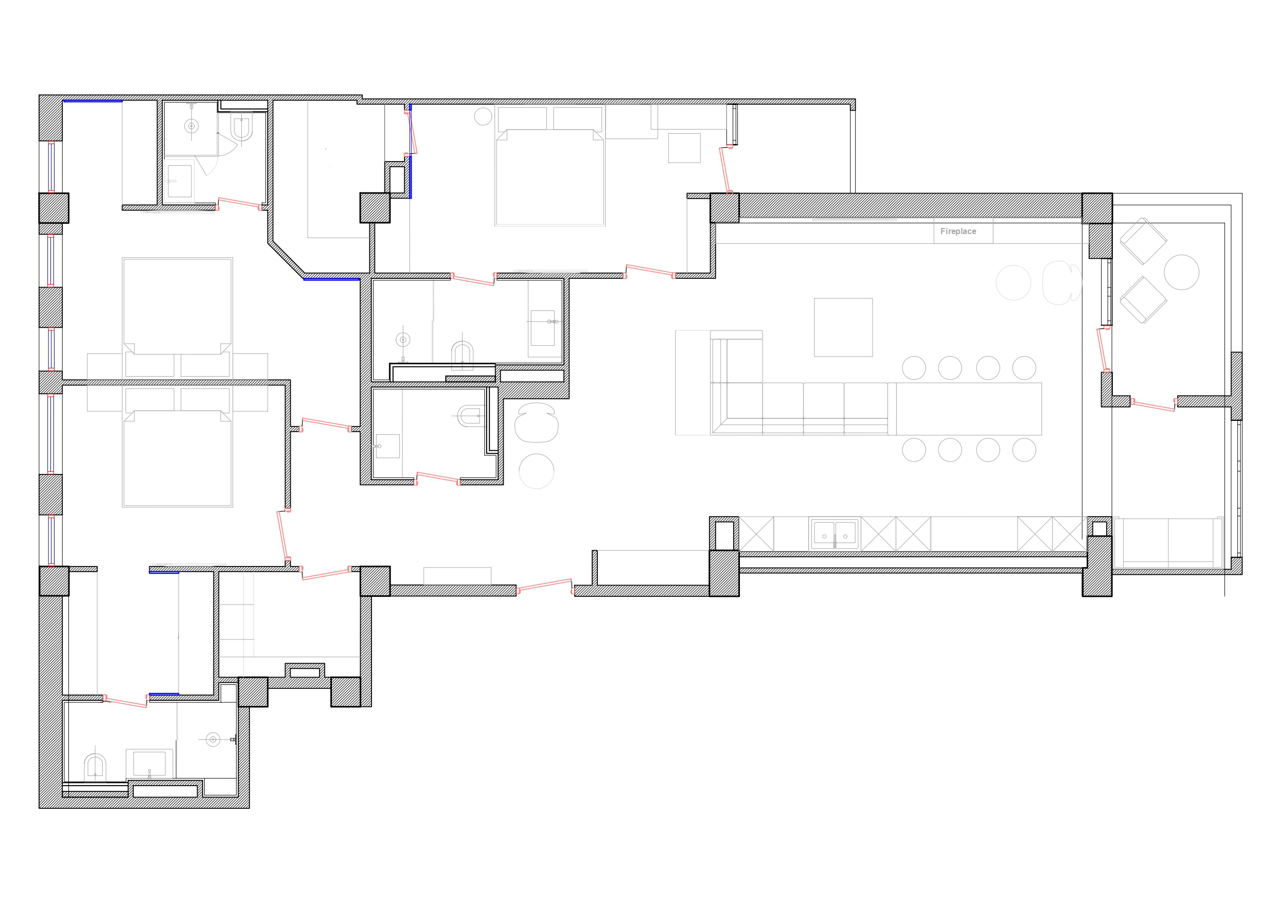
Apartment With a View of Ararat

Small apartment for an american-armenian family, who will enjoy their morning coffee with a view of Mount Ararat.

Location:
Yerevan, Armenia
Square meters:
152
Date:
2021

Apartment With a View of Ararat

Small apartment for an american-armenian family, who will enjoy their morning coffee with a view of Mount Ararat.